Top.Mail.Ru

Ангарская ул., д. 45, к. 6

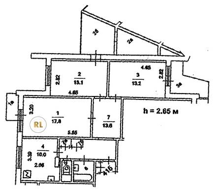
База каталог, Кол-во подъездов: 2, Отсутствует, П-3/16, Москва, Дмитровский, Площадь парковки: 180, Пассажирский лифт: 4, От метро: 2620, Северный, да, Наименьшее кол-во этажей: 16, Наибольшее кол-во этажей: 16, Селигерская, Кол-во помещений: 128, Кол-во нежилых помещений: 2, Год ввода в эксплуатацию: 1983, 3-комн, Кол-во жилых помещений: 126, E, дом 45, корпус 6, нет, да, нет, нет, нет, нет, Отсутствует, Грузовых лифтов: 0, Год постройки: 1983, Ангарская улица, 37.524435, 55.882500
Свяжитесь со мной на счет цены
10 дн.
T55S882500L37S524435T

На карте


Условия сделки

Источник


Старт продаж

Возможно заинтересует