Top.Mail.Ru

улица Тихомирова, д. 2

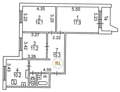
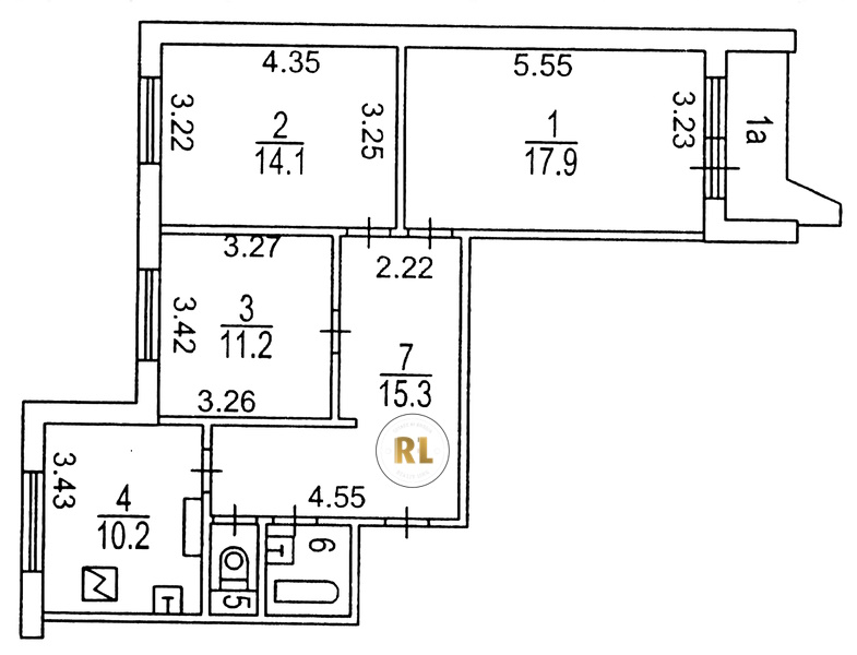
База каталог, Кол-во подъездов: 4, П-44, Москва, Северное Медведково, Площадь парковки: 0, Пассажирский лифт: 4, От метро: 1230, Северо-Восточный, нет, Наименьшее кол-во этажей: 14, Наибольшее кол-во этажей: 14, Медведково, Кол-во помещений: 220, Кол-во нежилых помещений: 5, Год ввода в эксплуатацию: 1997, 3-комн, Кол-во жилых помещений: 215, Не присвоен, дом 2, нет, да, да, да, да, нет, Имеется, Грузовых лифтов: 4, Год постройки: 1997, улица Тихомирова, 37.646274, 55.882737
21 600 000 Р
10 дн.
T55S882737L37S646274T
+

На карте


Условия сделки

Источник


Старт продаж

Возможно заинтересует