Top.Mail.Ru

проезд Шокальского, д. 55, к. 2

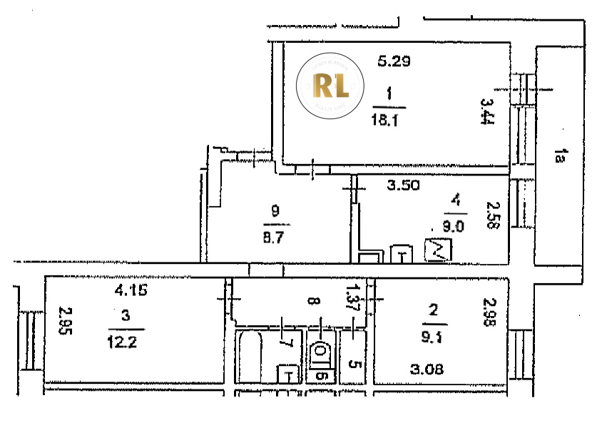
База каталог, Кол-во подъездов: 1, И-522, Москва, Северное Медведково, Площадь парковки: 0, Пассажирский лифт: 4, От метро: 480, Северо-Восточный, нет, Наименьшее кол-во этажей: 16, Наибольшее кол-во этажей: 16, Медведково, Кол-во помещений: 272, Кол-во нежилых помещений: 2, Год ввода в эксплуатацию: 1985, 3-комн, Кол-во жилых помещений: 270, Не присвоен, дом 55, корпус 2, да, да, да, да, да, да, Грузовых лифтов: 2, Год постройки: 1985, проезд Шокальского, 37.659658, 55.883111
Свяжитесь со мной на счет цены
10 дн.
T55S883111L37S659658T

На карте


Условия сделки

Источник


Старт продаж

Возможно заинтересует