Top.Mail.Ru

Челюскинская ул., д. 12

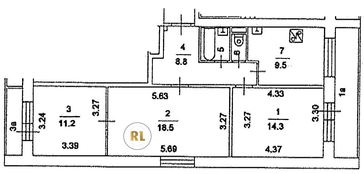
База каталог, Кол-во подъездов: 2, И-209А, Москва, Лосиноостровский, Площадь парковки: 0, Пассажирский лифт: 2, От метро: 3300, Северо-Восточный, нет, Наименьшее кол-во этажей: 14, Наибольшее кол-во этажей: 14, Медведково, Кол-во помещений: 196, Кол-во нежилых помещений: 0, Год ввода в эксплуатацию: 1970, 3-комн, Кол-во жилых помещений: 196, дом 12, нет, нет, нет, нет, нет, нет, Имеется, Грузовых лифтов: 2, Год постройки: 1970, Челюскинская улица, 37.707503, 55.883176
Свяжитесь со мной на счет цены
10 дн.
T55S883176L37S707503T

На карте


Условия сделки

Источник


Старт продаж

Возможно заинтересует