Top.Mail.Ru

улица Маршала Федоренко, д. 16/2, к. 2

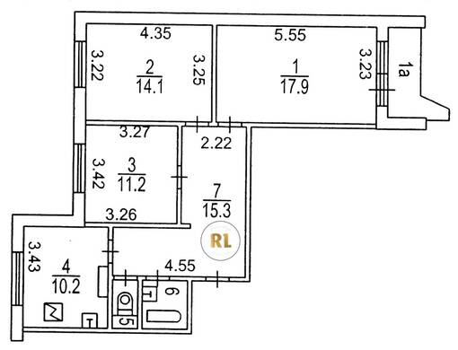
База каталог, Кол-во нежилых помещений: 1, П-44, Москва, Западное Дегунино, Пассажирский лифт: 4, От метро: 1070, Северный, да, Наименьшее кол-во этажей: 16, Наибольшее кол-во этажей: 16, Ховрино, Кол-во помещений: 256, Кол-во подъездов: 4, 3-комн, Год ввода в эксплуатацию: 1982, Кол-во жилых помещений: 255, Не присвоен, дом 16/2, корпус 2, нет, да, да, да, да, да, Имеется, Грузовых лифтов: 4, Год постройки: 1982, улица Маршала Федоренко, 37.487496, 55.883580
14 400 000 Р
10 дн.
T55S883580L37S487496T
+

На карте


Условия сделки

Источник