Top.Mail.Ru

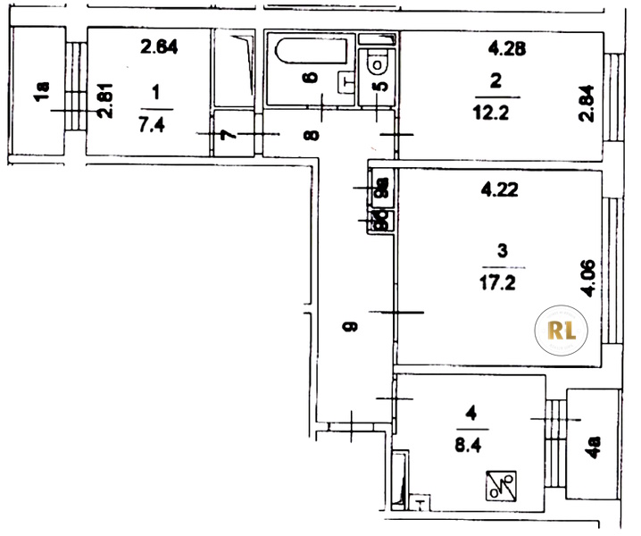
улица Плещеева, д. 6

База каталог, Кол-во подъездов: 5, П-30, Москва, Бибирево, Площадь парковки: 0, Пассажирский лифт: 10, От метро: 202, Северо-Восточный, нет, Наименьшее кол-во этажей: 12, Наибольшее кол-во этажей: 12, Бибирево, Кол-во помещений: 223, Кол-во нежилых помещений: 11, Год ввода в эксплуатацию: 1982, 3-комн, Кол-во жилых помещений: 212, А, дом 6, да, да, да, да, да, да, Грузовых лифтов: 0, Год постройки: 1982, улица Плещеева, 37.607592, 55.883818
Свяжитесь со мной на счет цены
10 дн.
T55S883818L37S607592T

На карте


Условия сделки

Источник


Старт продаж

Возможно заинтересует