Top.Mail.Ru

улица Тихомирова, д. 1, к. 2

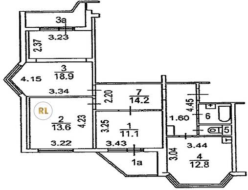
База каталог, Кол-во подъездов: 3, П-44T, Москва, Северное Медведково, Площадь парковки: 0, Пассажирский лифт: 3, От метро: 1220, Северо-Восточный, нет, Наименьшее кол-во этажей: 14, Наибольшее кол-во этажей: 14, Медведково, Кол-во помещений: 160, Кол-во нежилых помещений: 4, Год ввода в эксплуатацию: 2003, 3-комн, Кол-во жилых помещений: 156, Не присвоен, дом 1, корпус 2, нет, да, да, да, да, нет, Имеется, Грузовых лифтов: 3, Год постройки: 2003, улица Тихомирова, 37.644666, 55.883919
Свяжитесь со мной на счет цены
10 дн.
T55S883919L37S644666T

На карте


Условия сделки

Источник


Старт продаж

Возможно заинтересует