Top.Mail.Ru

улица Грекова, д. 1

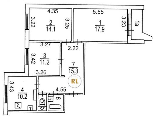
База каталог, Кол-во подъездов: 2, П-44, Москва, Северное Медведково, Площадь парковки: 0, Пассажирский лифт: 2, От метро: 281, Северо-Восточный, нет, Наименьшее кол-во этажей: 16, Наибольшее кол-во этажей: 16, Медведково, Кол-во помещений: 162, Кол-во нежилых помещений: 3, Год ввода в эксплуатацию: 1984, 3-комн, Кол-во жилых помещений: 159, Не присвоен, дом 1, да, да, да, да, да, да, Имеется, Грузовых лифтов: 2, Год постройки: 1984, улица Грекова, 37.660206, 55.883979
Свяжитесь со мной на счет цены
10 дн.
T55S883979L37S660206T

На карте


Условия сделки

Источник


Старт продаж

Возможно заинтересует