Top.Mail.Ru

Тайнинская ул., д. 13, к. 2

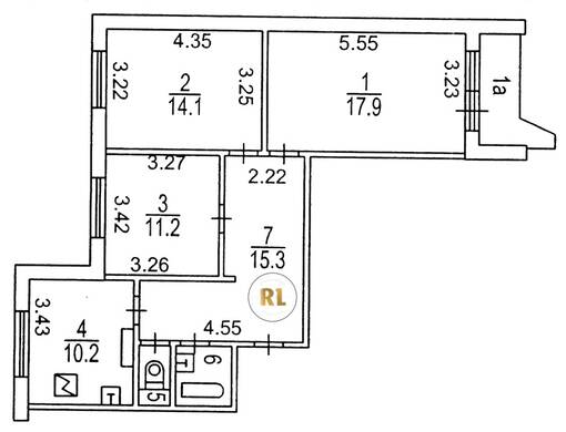
База каталог, Кол-во подъездов: 2, Имеется, П-44, Москва, Лосиноостровский, Площадь парковки: 566, Пассажирский лифт: 2, От метро: 1600, Северо-Восточный, да, Наименьшее кол-во этажей: 17, Наибольшее кол-во этажей: 17, Медведково, Кол-во помещений: 136, Кол-во нежилых помещений: 3, Год ввода в эксплуатацию: 1998, 3-комн, Кол-во жилых помещений: 133, Не присвоен, дом 13, корпус 2, нет, да, да, да, нет, нет, Имеется, Грузовых лифтов: 0, Год постройки: 1998, Тайнинская улица, 37.682125, 55.884368
Свяжитесь со мной на счет цены
10 дн.
T55S884368L37S682125T

На карте


Условия сделки

Источник


Старт продаж

Возможно заинтересует