Top.Mail.Ru

Дубнинская ул., д. 34

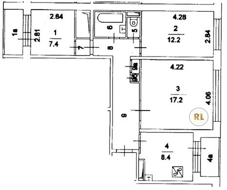
База каталог, Кол-во подъездов: 7, Имеется, П-30, Москва, Восточное Дегунино, Площадь парковки: 0, Пассажирский лифт: 14, От метро: 2420, Северный, нет, Наименьшее кол-во этажей: 12, Наибольшее кол-во этажей: 12, Селигерская, Кол-во помещений: 335, Кол-во нежилых помещений: 6, Год ввода в эксплуатацию: 1977, 3-комн, Кол-во жилых помещений: 329, Не присвоен, дом 34, нет, да, да, нет, нет, нет, Имеется, Грузовых лифтов: 0, Год постройки: 1977, Дубнинская улица, 37.558876, 55.884731
Свяжитесь со мной на счет цены
10 дн.
T55S884731L37S558876T

На карте


Условия сделки

Источник


Старт продаж

Возможно заинтересует