Top.Mail.Ru

улица Тихомирова, д. 12, к. 1

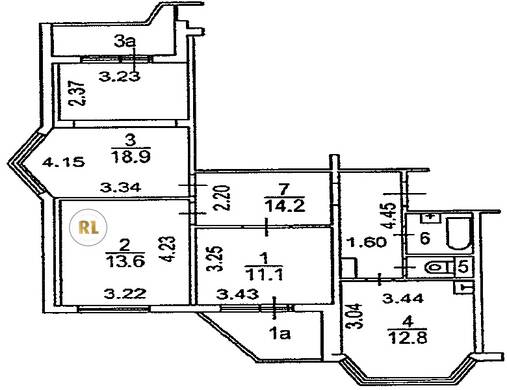
База каталог, Кол-во подъездов: 5, П-44T, Москва, Северное Медведково, Площадь парковки: 0, Пассажирский лифт: 5, От метро: 660, Северо-Восточный, нет, Наименьшее кол-во этажей: 14, Наибольшее кол-во этажей: 14, Медведково, Кол-во помещений: 268, Кол-во нежилых помещений: 8, Год ввода в эксплуатацию: 2009, 3-комн, Кол-во жилых помещений: 260, Не присвоен, дом 12, корпус 1, нет, да, да, да, да, да, Имеется, Грузовых лифтов: 5, Год постройки: 2009, улица Тихомирова, 37.655158, 55.885241
Свяжитесь со мной на счет цены
10 дн.
T55S885241L37S655158T

На карте


Условия сделки

Источник


Старт продаж

Возможно заинтересует