Top.Mail.Ru

улица Пришвина, д. 23

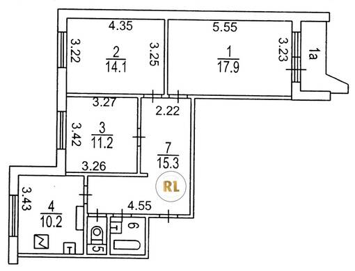
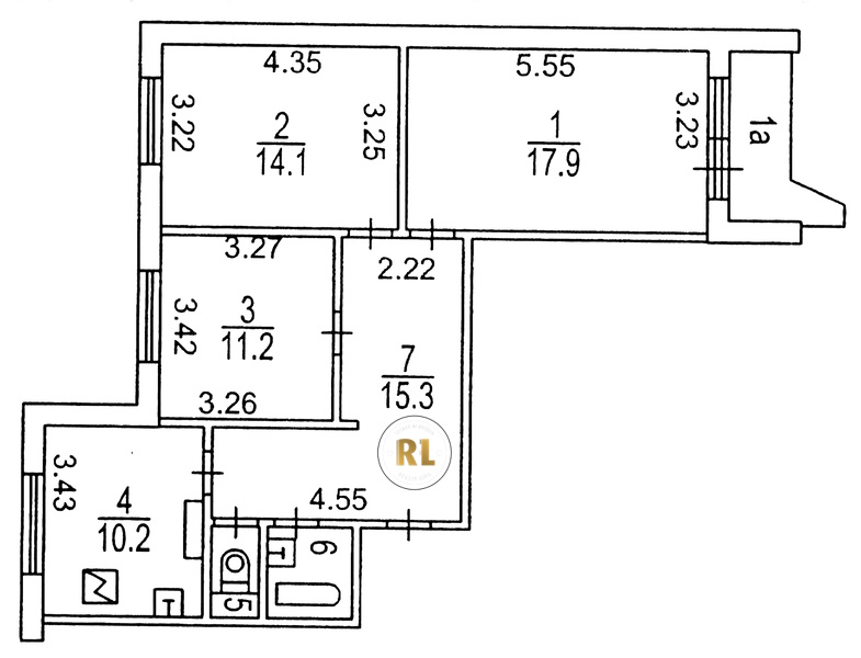
База каталог, Кол-во подъездов: 4, П-44-1/17, Москва, Бибирево, Пассажирский лифт: 4, От метро: 244, Северо-Восточный, да, Наименьшее кол-во этажей: 2, Наибольшее кол-во этажей: 17, Бибирево, Кол-во помещений: 256, Кол-во нежилых помещений: 0, Год ввода в эксплуатацию: 1988, 3-комн, Кол-во жилых помещений: 256, С, дом 23, да, да, да, да, да, да, Грузовых лифтов: 4, Год постройки: 1988, улица Пришвина, 37.604673, 55.885494
Свяжитесь со мной на счет цены
10 дн.
T55S885494L37S604673T

На карте


Условия сделки

Источник


Старт продаж

Возможно заинтересует