Top.Mail.Ru

Стартовая ул., д. 11

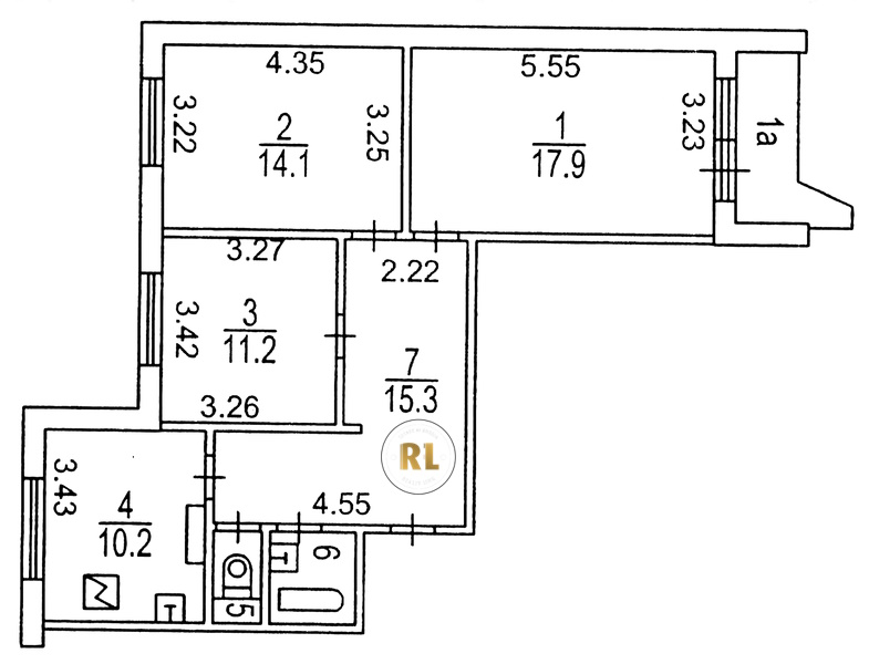
База каталог, Кол-во подъездов: 9, П-44, Москва, Лосиноостровский, Площадь парковки: 1319, Пассажирский лифт: 9, От метро: 2710, Северо-Восточный, да, Наименьшее кол-во этажей: 17, Наибольшее кол-во этажей: 17, Медведково, Кол-во помещений: 617, Кол-во нежилых помещений: 22, Год ввода в эксплуатацию: 1987, 3-комн, Кол-во жилых помещений: 595, Не присвоен, дом 11, нет, да, нет, нет, нет, нет, Имеется, Грузовых лифтов: 9, Год постройки: 1987, Стартовая улица, 37.699346, 55.885812
Свяжитесь со мной на счет цены
10 дн.
T55S885812L37S699346T

На карте


Условия сделки

Источник


Старт продаж

Возможно заинтересует