Top.Mail.Ru

Стартовая ул., д. 15, к. 1

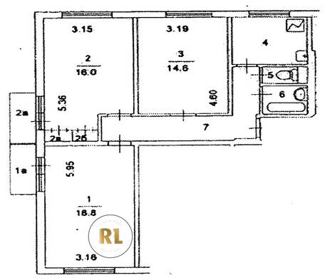
База каталог, Кол-во подъездов: 6, II-49Д, Москва, Лосиноостровский, Площадь парковки: 0, Пассажирский лифт: 6, От метро: 2620, Северо-Восточный, нет, Наименьшее кол-во этажей: 9, Наибольшее кол-во этажей: 9, Медведково, Кол-во помещений: 215, Кол-во нежилых помещений: 0, Год ввода в эксплуатацию: 1975, 3-комн, Кол-во жилых помещений: 215, Не присвоен, дом 15, корпус 1, нет, да, нет, нет, нет, нет, Грузовых лифтов: 0, Год постройки: 1975, Стартовая улица, 37.697900, 55.885873
Свяжитесь со мной на счет цены
10 дн.
T55S885873L37S697900T

На карте


Условия сделки

Источник


Старт продаж

Возможно заинтересует