Top.Mail.Ru

Костромская ул., д. 6, к. 2

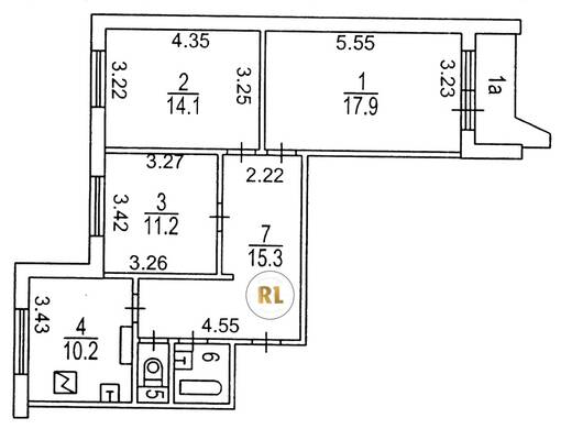
База каталог, Кол-во подъездов: 3, Имеется, П-44, Москва, Алтуфьевский, Площадь парковки: 1128, Пассажирский лифт: 3, От метро: 680, Северо-Восточный, да, Наименьшее кол-во этажей: 14, Наибольшее кол-во этажей: 14, Бибирево, Кол-во помещений: 167, Кол-во нежилых помещений: 0, Год ввода в эксплуатацию: 1998, 3-комн, Кол-во жилых помещений: 167, Не присвоен, дом 6, корпус 2, нет, да, да, да, да, да, Имеется, Грузовых лифтов: 3, Год постройки: 1998, Костромская улица, 37.592473, 55.886085
Свяжитесь со мной на счет цены
10 дн.
T55S886085L37S592473T

На карте


Условия сделки

Источник


Старт продаж

Возможно заинтересует