Top.Mail.Ru

Тайнинская ул., д. 17, к. 2

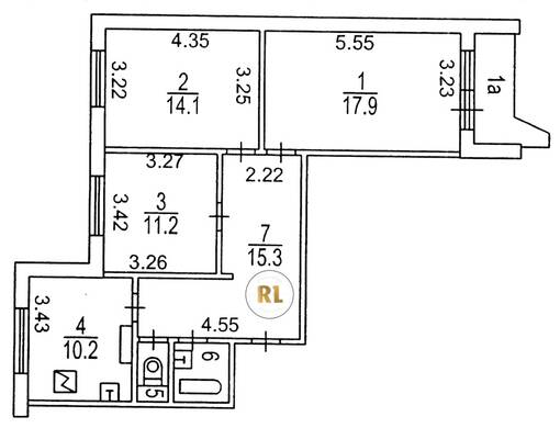
База каталог, Кол-во подъездов: 2, П-44, Москва, Лосиноостровский, Площадь парковки: 121, Пассажирский лифт: 2, От метро: 1550, Северо-Восточный, да, Наименьшее кол-во этажей: 17, Наибольшее кол-во этажей: 17, Медведково, Кол-во помещений: 138, Кол-во нежилых помещений: 3, Год ввода в эксплуатацию: 1998, 3-комн, Кол-во жилых помещений: 135, Не присвоен, дом 17, корпус 2, нет, да, да, да, да, нет, Грузовых лифтов: 2, Год постройки: 1998, Тайнинская улица, 37.683661, 55.886211
Свяжитесь со мной на счет цены
10 дн.
T55S886211L37S683661T

На карте


Условия сделки

Источник


Старт продаж

Возможно заинтересует