Top.Mail.Ru

улица Пришвина, д. 19

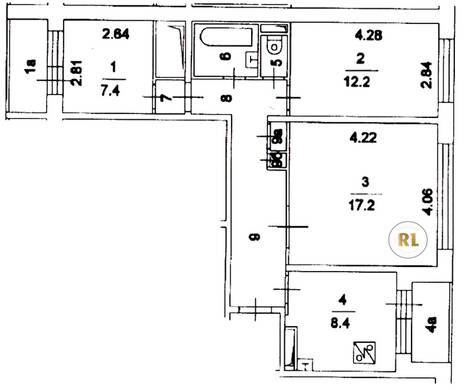
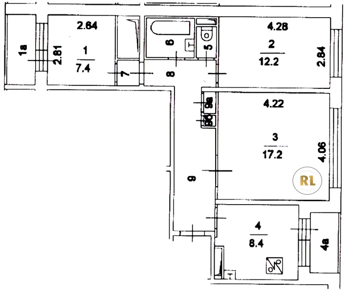
База каталог, Кол-во подъездов: 2, П-30, Москва, Бибирево, Площадь парковки: 0, Пассажирский лифт: 2, От метро: 350, Северо-Восточный, нет, Наименьшее кол-во этажей: 12, Наибольшее кол-во этажей: 12, Бибирево, Кол-во помещений: 102, Кол-во нежилых помещений: 7, Год ввода в эксплуатацию: 1982, 3-комн, Кол-во жилых помещений: 95, D, дом 19, да, да, да, да, да, да, Грузовых лифтов: 2, Год постройки: 1982, улица Пришвина, 37.603810, 55.886413
Свяжитесь со мной на счет цены
10 дн.
T55S886413L37S603810T

На карте


Условия сделки

Источник


Старт продаж

Возможно заинтересует