Top.Mail.Ru

Стартовая ул., д. 9, к. 1

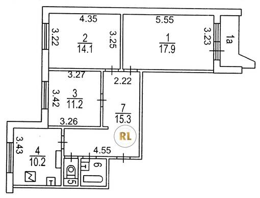
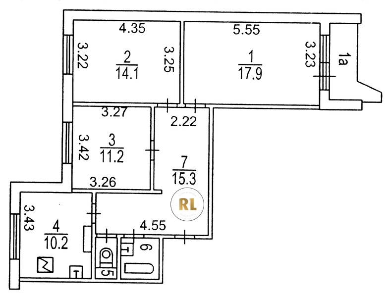
База каталог, Кол-во подъездов: 2, П-44, Москва, Лосиноостровский, Площадь парковки: 0, Пассажирский лифт: 2, От метро: 2920, Северо-Восточный, нет, Наименьшее кол-во этажей: 17, Наибольшее кол-во этажей: 17, Медведково, Кол-во помещений: 139, Кол-во нежилых помещений: 4, Год ввода в эксплуатацию: 1987, 3-комн, Кол-во жилых помещений: 135, Не присвоен, дом 9, корпус 1, нет, да, нет, нет, нет, нет, Грузовых лифтов: 2, Год постройки: 1987, Стартовая улица, 37.702176, 55.886670
Свяжитесь со мной на счет цены
10 дн.
T55S886670L37S702176T

На карте


Условия сделки

Источник


Старт продаж

Возможно заинтересует