Top.Mail.Ru

Широкая ул., д. 2, к. 2

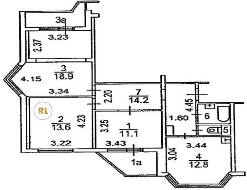
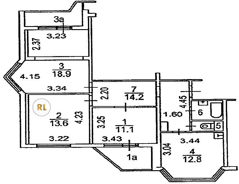
База каталог, Кол-во подъездов: 5, П-44T, Москва, Северное Медведково, Площадь парковки: 0, Пассажирский лифт: 5, От метро: 1000, Северо-Восточный, нет, Наименьшее кол-во этажей: 12, Наибольшее кол-во этажей: 12, Медведково, Кол-во помещений: 241, Кол-во нежилых помещений: 6, Год ввода в эксплуатацию: 2005, 3-комн, Кол-во жилых помещений: 235, Не присвоен, дом 2, корпус 2, нет, да, да, да, да, да, Имеется, Грузовых лифтов: 5, Год постройки: 2005, Широкая улица, 37.647127, 55.886736
Свяжитесь со мной на счет цены
10 дн.
T55S886736L37S647127T

На карте


Условия сделки

Источник


Старт продаж

Возможно заинтересует