Top.Mail.Ru

Лобненская ул., д. 9А

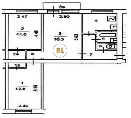
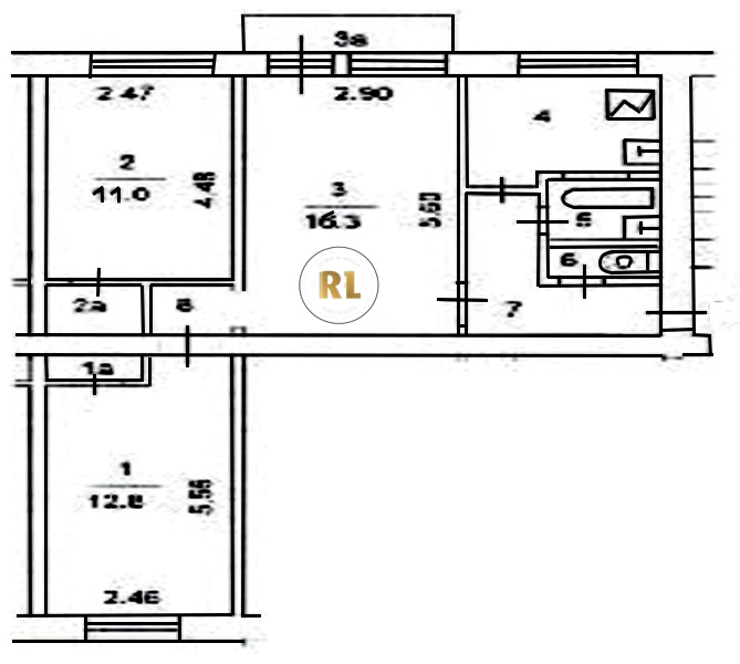
База каталог, Кол-во подъездов: 2, Отсутствует, I-511, Москва, Дмитровский, Площадь парковки: 540, Пассажирский лифт: 0, От метро: 2600, Северный, да, Наименьшее кол-во этажей: 5, Наибольшее кол-во этажей: 5, Селигерская, Кол-во помещений: 84, Кол-во нежилых помещений: 4, Год ввода в эксплуатацию: 1962, 3-комн, Кол-во жилых помещений: 80, E, дом 9А, нет, да, нет, нет, нет, нет, Имеется, Грузовых лифтов: 0, Год постройки: 1962, Лобненская улица, 37.538143, 55.887973
Свяжитесь со мной на счет цены
10 дн.
T55S887973L37S538143T

На карте


Условия сделки

Источник


Старт продаж

Возможно заинтересует