Top.Mail.Ru

Лобненская ул., д. 5

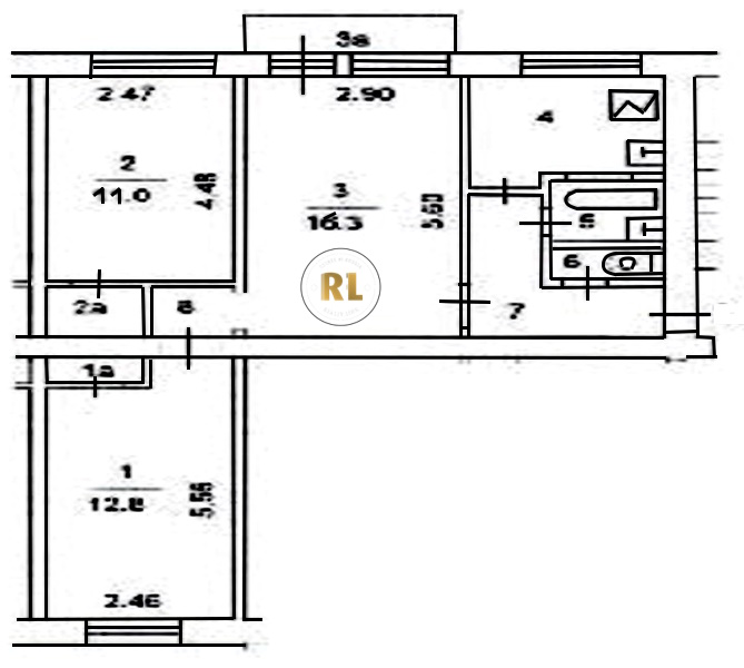
База каталог, Кол-во подъездов: 4, Отсутствует, I-511, Москва, Дмитровский, Площадь парковки: 675, Пассажирский лифт: 0, От метро: 2560, Северный, да, Наименьшее кол-во этажей: 5, Наибольшее кол-во этажей: 5, Селигерская, Кол-во помещений: 73, Кол-во нежилых помещений: 7, Год ввода в эксплуатацию: 1963, 3-комн, Кол-во жилых помещений: 66, D, дом 5, нет, да, да, нет, нет, нет, Отсутствует, Грузовых лифтов: 0, Год постройки: 1963, Лобненская улица, 37.539563, 55.888155
Свяжитесь со мной на счет цены
10 дн.
T55S888155L37S539563T

На карте


Условия сделки

Источник


Старт продаж

Возможно заинтересует