Top.Mail.Ru

Широкая ул., д. 9, к. 2

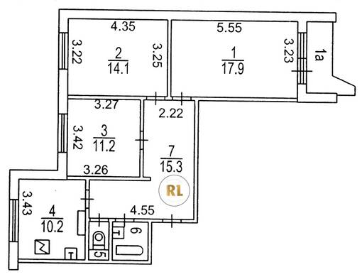
База каталог, Кол-во подъездов: 2, Имеется, П-44, Москва, Северное Медведково, Площадь парковки: 0, Пассажирский лифт: 2, От метро: 320, Северо-Восточный, нет, Наименьшее кол-во этажей: 10, Наибольшее кол-во этажей: 14, Медведково, Кол-во помещений: 92, Кол-во нежилых помещений: 4, Год ввода в эксплуатацию: 2008, 3-комн, Кол-во жилых помещений: 88, Не присвоен, дом 9, корпус 2, да, да, да, да, да, да, Имеется, Грузовых лифтов: 2, Год постройки: 2008, Широкая улица, 37.658068, 55.888821
Свяжитесь со мной на счет цены
10 дн.
T55S888821L37S658068T

На карте


Условия сделки

Источник


Старт продаж

Возможно заинтересует