Top.Mail.Ru

Широкая ул., д. 7, к. 1

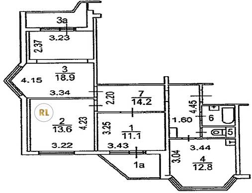
База каталог, Кол-во подъездов: 2, П-44T, Москва, Северное Медведково, Площадь парковки: 0, Пассажирский лифт: 2, От метро: 400, Северо-Восточный, нет, Наименьшее кол-во этажей: 17, Наибольшее кол-во этажей: 17, Медведково, Кол-во помещений: 138, Кол-во нежилых помещений: 3, Год ввода в эксплуатацию: 2000, 3-комн, Кол-во жилых помещений: 135, Не присвоен, дом 7, корпус 1, да, да, да, да, да, да, Имеется, Грузовых лифтов: 2, Год постройки: 2000, Широкая улица, 37.656757, 55.888876
Свяжитесь со мной на счет цены
10 дн.
T55S888876L37S656757T

На карте


Условия сделки

Источник


Старт продаж

Возможно заинтересует