Top.Mail.Ru

улица Плещеева, д. 26

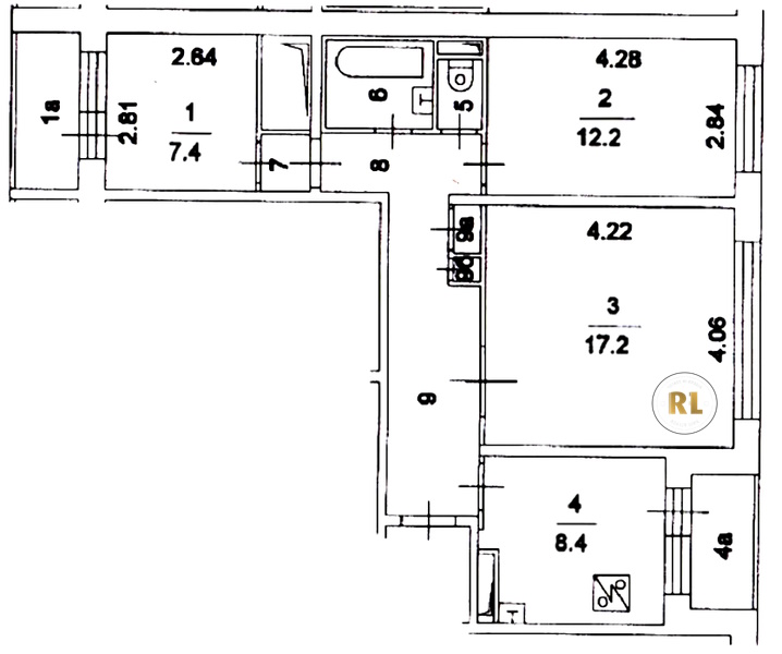
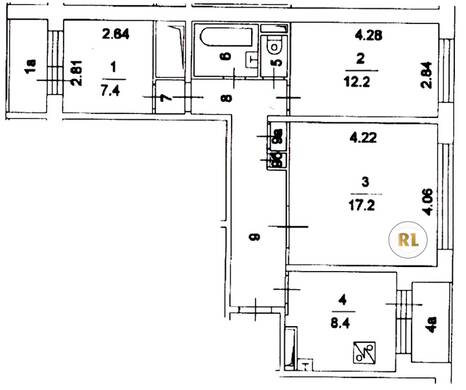
База каталог, Кол-во подъездов: 3, П-30, Москва, Бибирево, Площадь парковки: 0, Пассажирский лифт: 6, От метро: 1140, Северо-Восточный, нет, Наименьшее кол-во этажей: 12, Наибольшее кол-во этажей: 12, Бибирево, Кол-во помещений: 150, Кол-во нежилых помещений: 8, Год ввода в эксплуатацию: 1982, 3-комн, Кол-во жилых помещений: 142, D, дом 26, нет, да, да, да, да, нет, Грузовых лифтов: 0, Год постройки: 1982, улица Плещеева, 37.619270, 55.889139
Свяжитесь со мной на счет цены
10 дн.
T55S889139L37S619270T

На карте


Условия сделки

Источник


Старт продаж

Возможно заинтересует