Top.Mail.Ru

Илимская ул., д. 5

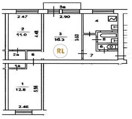
База каталог, Кол-во подъездов: 4, I-511, Москва, Лианозово, Площадь парковки: 0, Пассажирский лифт: 0, От метро: 1120, Северо-Восточный, нет, Наименьшее кол-во этажей: 5, Наибольшее кол-во этажей: 5, Алтуфьево, Кол-во помещений: 81, Кол-во нежилых помещений: 1, Год ввода в эксплуатацию: 1963, 3-комн, Кол-во жилых помещений: 80, Не присвоен, дом 5, нет, да, да, да, да, нет, Имеется, Грузовых лифтов: 0, Год постройки: 1963, Илимская улица, 37.581253, 55.889220
Свяжитесь со мной на счет цены
10 дн.
T55S889220L37S581253T

На карте


Условия сделки

Источник


Старт продаж

Возможно заинтересует