Top.Mail.Ru

улица Плещеева, д. 28

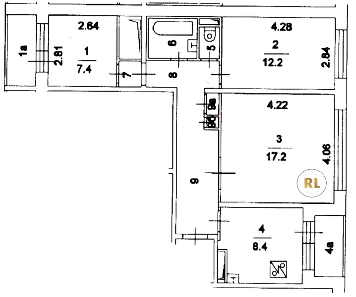
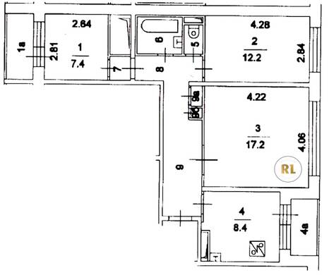
База каталог, Кол-во подъездов: 9, П-30, Москва, Бибирево, Площадь парковки: 0, Пассажирский лифт: 18, От метро: 1350, Северо-Восточный, нет, Наименьшее кол-во этажей: 12, Наибольшее кол-во этажей: 12, Бибирево, Кол-во помещений: 385, Кол-во нежилых помещений: 20, Год ввода в эксплуатацию: 1982, 3-комн, Кол-во жилых помещений: 365, D, дом 28, нет, да, да, да, да, нет, Грузовых лифтов: 0, Год постройки: 1982, улица Плещеева, 37.622612, 55.889356
Свяжитесь со мной на счет цены
10 дн.
T55S889356L37S622612T

На карте


Условия сделки

Источник


Старт продаж

Возможно заинтересует