Top.Mail.Ru

улица Пришвина, д. 9/2

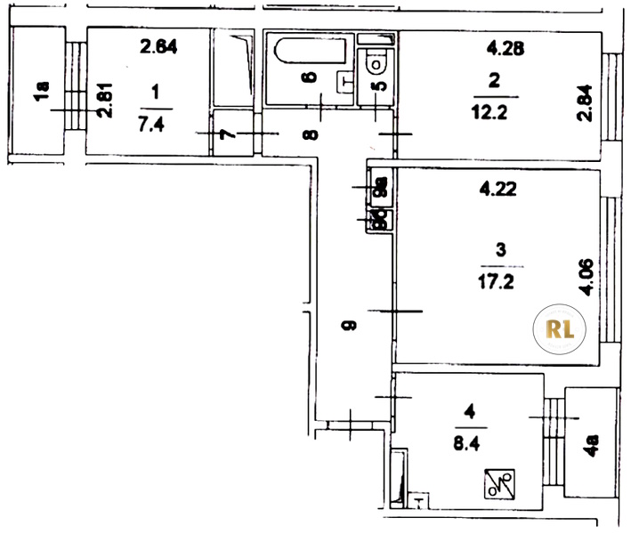
База каталог, Кол-во подъездов: 5, П-30, Москва, Бибирево, Площадь парковки: 0, Пассажирский лифт: 10, От метро: 790, Северо-Восточный, нет, Наименьшее кол-во этажей: 12, Наибольшее кол-во этажей: 12, Бибирево, Кол-во помещений: 245, Кол-во нежилых помещений: 15, Год ввода в эксплуатацию: 1975, 3-комн, Кол-во жилых помещений: 230, D, дом 9/2, нет, да, да, да, да, да, Грузовых лифтов: 0, Год постройки: 1975, улица Пришвина, 37.597612, 55.889492
Свяжитесь со мной на счет цены
10 дн.
T55S889492L37S597612T

На карте


Условия сделки

Источник


Старт продаж

Возможно заинтересует