Top.Mail.Ru

Илимская ул., д. 10

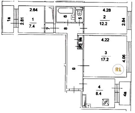
База каталог, Кол-во подъездов: 7, П-30, Москва, Лианозово, Площадь парковки: 0, Пассажирский лифт: 14, От метро: 910, Северо-Восточный, нет, Наименьшее кол-во этажей: 12, Наибольшее кол-во этажей: 12, Алтуфьево, Кол-во помещений: 332, Кол-во нежилых помещений: 2, Год ввода в эксплуатацию: 1977, 3-комн, Кол-во жилых помещений: 330, Не присвоен, дом 10, нет, да, да, да, да, да, Имеется, Грузовых лифтов: 0, Год постройки: 1977, Илимская улица, 37.582188, 55.890320
Свяжитесь со мной на счет цены
10 дн.
T55S890320L37S582188T

На карте


Условия сделки

Источник


Старт продаж

Возможно заинтересует