Top.Mail.Ru

Широкая ул., д. 3, к. 4

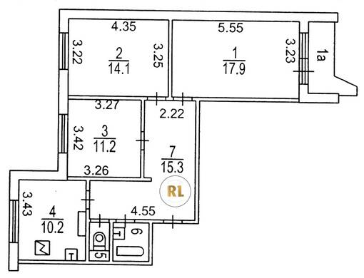
База каталог, Кол-во подъездов: 5, Имеется, П-44, Москва, Северное Медведково, Площадь парковки: 0, Пассажирский лифт: 5, От метро: 670, Северо-Восточный, нет, Наименьшее кол-во этажей: 14, Наибольшее кол-во этажей: 14, Медведково, Кол-во помещений: 284, Кол-во нежилых помещений: 6, Год ввода в эксплуатацию: 1997, 3-комн, Кол-во жилых помещений: 278, Не присвоен, дом 3, корпус 4, нет, да, да, да, да, да, Имеется, Грузовых лифтов: 5, Год постройки: 1997, Широкая улица, 37.653990, 55.890497
Свяжитесь со мной на счет цены
10 дн.
T55S890497L37S653990T

На карте


Условия сделки

Источник


Старт продаж

Возможно заинтересует