Top.Mail.Ru

улица Грекова, д. 16

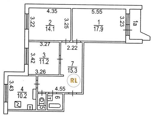
База каталог, Кол-во подъездов: 2, П-44, Москва, Северное Медведково, Площадь парковки: 0, Пассажирский лифт: 2, От метро: 390, Северо-Восточный, нет, Наименьшее кол-во этажей: 17, Наибольшее кол-во этажей: 17, Медведково, Кол-во помещений: 134, Кол-во нежилых помещений: 3, Год ввода в эксплуатацию: 2012, 3-комн, Кол-во жилых помещений: 131, Не присвоен, дом 16, да, да, да, да, да, да, Грузовых лифтов: 2, Год постройки: 2012, улица Грекова, 37.663171, 55.890608
Свяжитесь со мной на счет цены
10 дн.
T55S890608L37S663171T

На карте


Условия сделки

Источник


Старт продаж

Возможно заинтересует