Top.Mail.Ru

улица Корнейчука, д. 59А

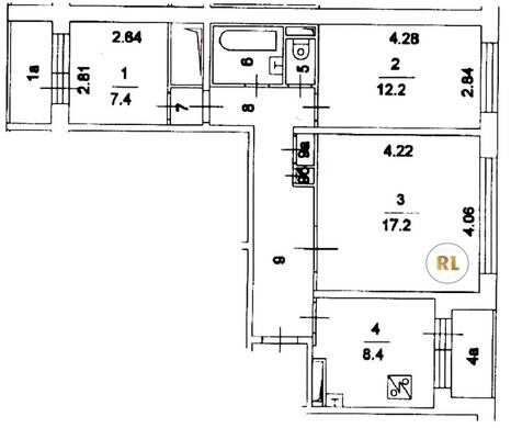
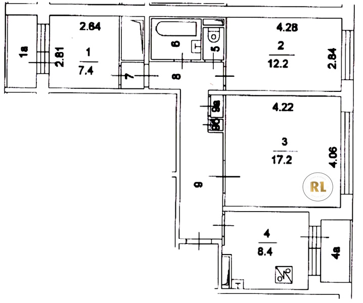
База каталог, Кол-во подъездов: 3, П-30, Москва, Бибирево, Площадь парковки: 0, Пассажирский лифт: 6, От метро: 1680, Северо-Восточный, нет, Наименьшее кол-во этажей: 12, Наибольшее кол-во этажей: 12, Бибирево, Кол-во помещений: 146, Кол-во нежилых помещений: 4, Год ввода в эксплуатацию: 1982, 3-комн, Кол-во жилых помещений: 142, А, дом 59А, нет, да, да, да, нет, нет, Грузовых лифтов: 0, Год постройки: 1982, улица Корнейчука, 37.625909, 55.890714
Свяжитесь со мной на счет цены
10 дн.
T55S890714L37S625909T

На карте


Условия сделки

Источник


Старт продаж

Возможно заинтересует