Top.Mail.Ru

Северодвинская ул., д. 11, к. 1

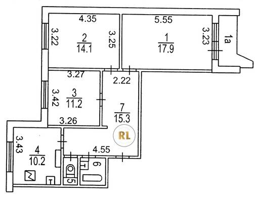
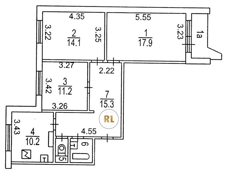
База каталог, Кол-во подъездов: 9, Имеется, П-44, Москва, Северное Медведково, Площадь парковки: 0, Пассажирский лифт: 9, От метро: 1360, Северо-Восточный, нет, Наименьшее кол-во этажей: 17, Наибольшее кол-во этажей: 17, Медведково, Кол-во помещений: 609, Кол-во нежилых помещений: 0, Год ввода в эксплуатацию: 1984, 3-комн, Кол-во жилых помещений: 609, Не присвоен, дом 11, корпус 1, нет, да, да, да, да, нет, Имеется, Грузовых лифтов: 9, Год постройки: 1983, Северодвинская улица, 37.678954, 55.890810
20 500 000 Р
10 дн.
T55S890810L37S678954T
+

На карте


Условия сделки

Источник


Старт продаж

Возможно заинтересует