Top.Mail.Ru

улица Коненкова, д. 11

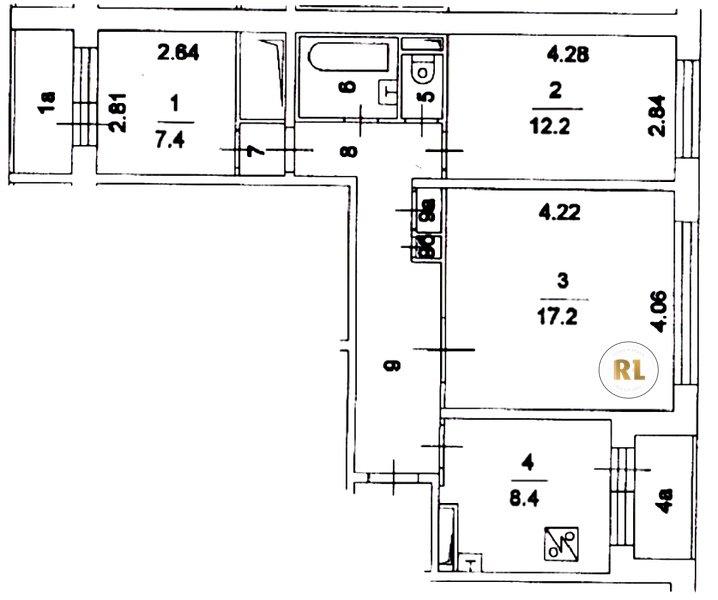
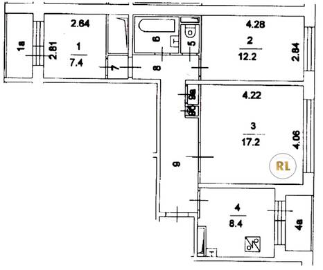
База каталог, Кол-во подъездов: 6, П-30, Москва, Бибирево, Площадь парковки: 0, Пассажирский лифт: 12, От метро: 1000, Северо-Восточный, нет, Наименьшее кол-во этажей: 12, Наибольшее кол-во этажей: 12, Бибирево, Кол-во помещений: 294, Кол-во нежилых помещений: 8, Год ввода в эксплуатацию: 1974, 3-комн, Кол-во жилых помещений: 286, А, дом 11, нет, да, да, да, да, да, Грузовых лифтов: 0, Год постройки: 1974, улица Коненкова, 37.606891, 55.890921
Свяжитесь со мной на счет цены
10 дн.
T55S890921L37S606891T

На карте


Условия сделки

Источник


Старт продаж

Возможно заинтересует