Top.Mail.Ru

Лобненская ул., д. 15, к. 2

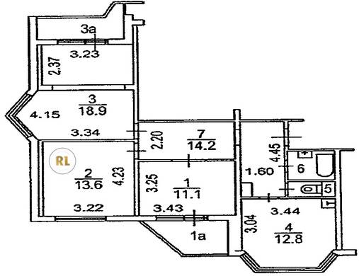
База каталог, Кол-во подъездов: 4, Имеется, П-44T, Москва, Дмитровский, Площадь парковки: 783, Пассажирский лифт: 8, От метро: 3600, Северный, да, Наименьшее кол-во этажей: 16, Наибольшее кол-во этажей: 16, Селигерская, Кол-во помещений: 256, Кол-во нежилых помещений: 1, Год ввода в эксплуатацию: 1982, 3-комн, Кол-во жилых помещений: 255, E, дом 15, корпус 2, нет, нет, нет, нет, нет, нет, Имеется, Грузовых лифтов: 0, Год постройки: 1982, Лобненская улица, 37.525136, 55.891416
Свяжитесь со мной на счет цены
10 дн.
T55S891416L37S525136T

На карте


Условия сделки

Источник


Старт продаж

Возможно заинтересует