Top.Mail.Ru

Полярная ул., д. 54, к. 1

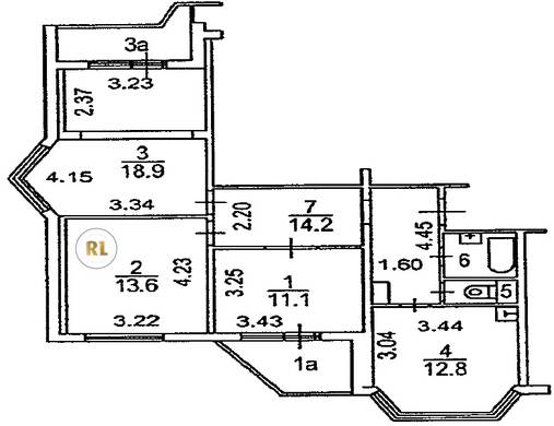
База каталог, Кол-во подъездов: 5, Имеется, П-44T, Москва, Северное Медведково, Площадь парковки: 0, Пассажирский лифт: 5, От метро: 1110, Северо-Восточный, нет, Наименьшее кол-во этажей: 17, Наибольшее кол-во этажей: 17, Медведково, Кол-во помещений: 335, Кол-во нежилых помещений: 6, Год ввода в эксплуатацию: 2002, 3-комн, Кол-во жилых помещений: 329, Не присвоен, дом 54, корпус 1, нет, да, да, да, да, нет, Имеется, Грузовых лифтов: 5, Год постройки: 2002, Полярная улица, 37.647450, 55.891456
Свяжитесь со мной на счет цены
10 дн.
T55S891456L37S647450T

На карте


Условия сделки

Источник


Старт продаж

Возможно заинтересует