Top.Mail.Ru

Илимская ул., д. 4

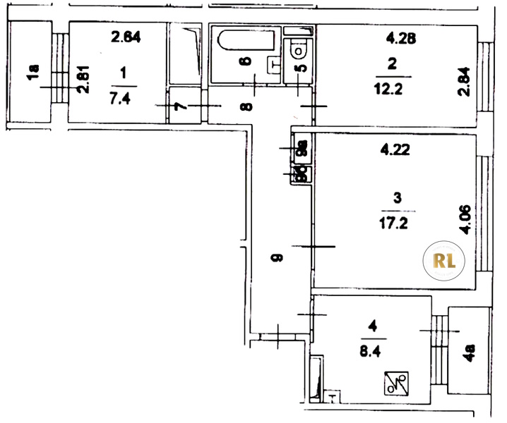
База каталог, Кол-во подъездов: 4, П-30, Москва, Лианозово, Площадь парковки: 0, Пассажирский лифт: 8, От метро: 1160, Северо-Восточный, нет, Наименьшее кол-во этажей: 12, Наибольшее кол-во этажей: 12, Алтуфьево, Кол-во помещений: 191, Кол-во нежилых помещений: 1, Год ввода в эксплуатацию: 1980, 3-комн, Кол-во жилых помещений: 190, Не присвоен, дом 4, нет, да, да, да, да, нет, Имеется, Грузовых лифтов: 0, Год постройки: 1980, Илимская улица, 37.575387, 55.891789
Свяжитесь со мной на счет цены
10 дн.
T55S891789L37S575387T

На карте


Условия сделки

Источник


Старт продаж

Возможно заинтересует