Top.Mail.Ru

улица Корнейчука, д. 55

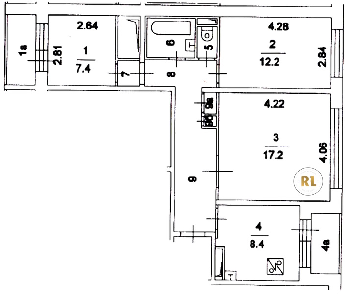
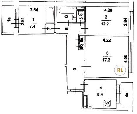
База каталог, Кол-во подъездов: 6, П-30, Москва, Бибирево, Площадь парковки: 0, Пассажирский лифт: 12, От метро: 1590, Северо-Восточный, нет, Наименьшее кол-во этажей: 12, Наибольшее кол-во этажей: 12, Бибирево, Кол-во помещений: 292, Кол-во нежилых помещений: 12, Год ввода в эксплуатацию: 1981, 3-комн, Кол-во жилых помещений: 280, А, дом 55, нет, да, да, да, да, нет, Грузовых лифтов: 0, Год постройки: 1981, улица Корнейчука, 37.624885, 55.891855
Свяжитесь со мной на счет цены
10 дн.
T55S891855L37S624885T

На карте


Условия сделки

Источник


Старт продаж

Возможно заинтересует