Top.Mail.Ru

улица Корнейчука, д. 51Б

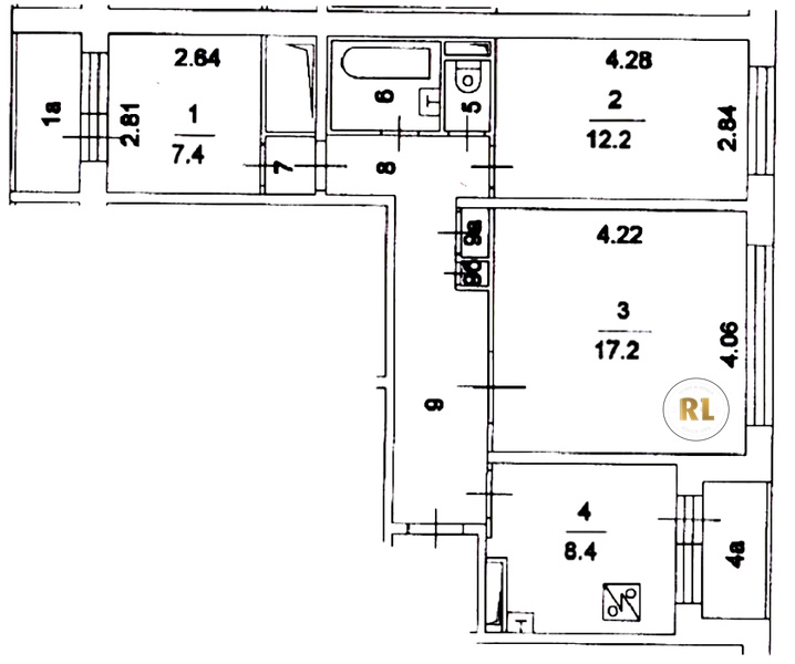
База каталог, Кол-во подъездов: 3, П-30, Москва, Бибирево, Площадь парковки: 0, Пассажирский лифт: 3, От метро: 1920, Северо-Восточный, нет, Наименьшее кол-во этажей: 12, Наибольшее кол-во этажей: 12, Бибирево, Кол-во помещений: 147, Кол-во нежилых помещений: 8, Год ввода в эксплуатацию: 1981, 3-комн, Кол-во жилых помещений: 139, А, дом 51Б, нет, да, да, да, нет, нет, Грузовых лифтов: 3, Год постройки: 1981, улица Корнейчука, 37.629053, 55.892011
Свяжитесь со мной на счет цены
10 дн.
T55S892011L37S629053T

На карте


Условия сделки

Источник


Старт продаж

Возможно заинтересует