Top.Mail.Ru

Полярная ул., д. 54, к. 2

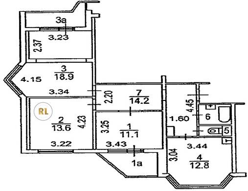
База каталог, Кол-во подъездов: 2, П-44T, Москва, Северное Медведково, Площадь парковки: 0, Пассажирский лифт: 2, От метро: 1250, Северо-Восточный, нет, Наименьшее кол-во этажей: 17, Наибольшее кол-во этажей: 17, Медведково, Кол-во помещений: 130, Кол-во нежилых помещений: 3, Год ввода в эксплуатацию: 2001, 3-комн, Кол-во жилых помещений: 127, Не присвоен, дом 54, корпус 2, нет, да, да, да, да, нет, Имеется, Грузовых лифтов: 2, Год постройки: 2001, Полярная улица, 37.647217, 55.892011
Свяжитесь со мной на счет цены
10 дн.
T55S892011L37S647217T

На карте


Условия сделки

Источник


Старт продаж

Возможно заинтересует