Top.Mail.Ru

Дубнинская ул., д. 46

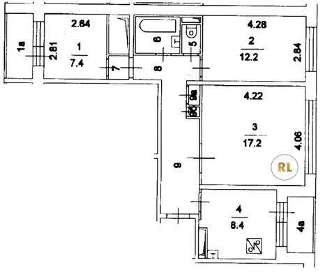
База каталог, Кол-во подъездов: 7, Имеется, П-30, Москва, Восточное Дегунино, Площадь парковки: 0, Пассажирский лифт: 14, От метро: 2780, Северный, нет, Наименьшее кол-во этажей: 12, Наибольшее кол-во этажей: 12, Алтуфьево, Кол-во помещений: 334, Кол-во нежилых помещений: 2, Год ввода в эксплуатацию: 1979, 3-комн, Кол-во жилых помещений: 332, Не присвоен, дом 46, нет, да, нет, нет, нет, нет, Имеется, Грузовых лифтов: 0, Год постройки: 1979, Дубнинская улица, 37.558670, 55.892163
Свяжитесь со мной на счет цены
10 дн.
T55S892163L37S558670T

На карте


Условия сделки

Источник


Старт продаж

Возможно заинтересует