Top.Mail.Ru

Студеный проезд, д. 4, к. 2

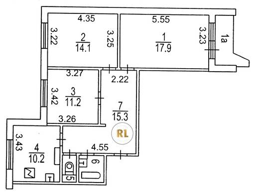
База каталог, Кол-во подъездов: 3, П-44, Москва, Северное Медведково, Площадь парковки: 0, Пассажирский лифт: 3, От метро: 840, Северо-Восточный, нет, Наименьшее кол-во этажей: 17, Наибольшее кол-во этажей: 17, Медведково, Кол-во помещений: 197, Кол-во нежилых помещений: 4, Год ввода в эксплуатацию: 1999, 3-комн, Кол-во жилых помещений: 193, Не присвоен, дом 4, корпус 2, нет, да, да, да, да, да, Имеется, Грузовых лифтов: 3, Год постройки: 1999, Студеный проезд, 37.655230, 55.892223
Свяжитесь со мной на счет цены
10 дн.
T55S892223L37S655230T

На карте


Условия сделки

Источник


Старт продаж

Возможно заинтересует