Top.Mail.Ru

Студеный проезд, д. 4, к. 5

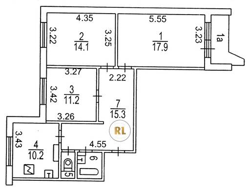
База каталог, Кол-во подъездов: 2, Отсутствует, П-44, Москва, Северное Медведково, Площадь парковки: 0, Пассажирский лифт: 2, От метро: 890, Северо-Восточный, нет, Наименьшее кол-во этажей: 17, Наибольшее кол-во этажей: 17, Медведково, Кол-во помещений: 137, Кол-во нежилых помещений: 3, Год ввода в эксплуатацию: 1997, 3-комн, Кол-во жилых помещений: 134, Не присвоен, дом 4, корпус 5, нет, да, да, да, да, да, Имеется, Грузовых лифтов: 2, Год постройки: 1997, Студеный проезд, 37.653514, 55.892294
Свяжитесь со мной на счет цены
10 дн.
T55S892294L37S653514T

На карте


Условия сделки

Источник


Старт продаж

Возможно заинтересует