Top.Mail.Ru

Дубнинская ул., д. 46, к. 1

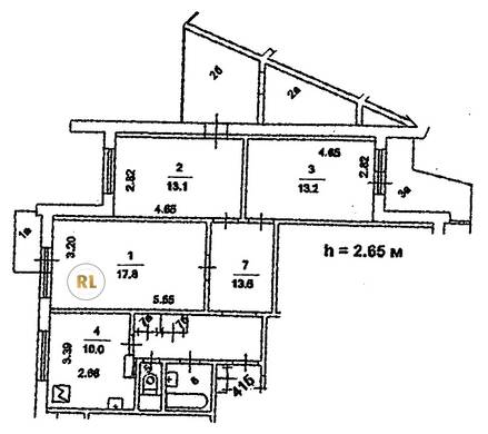
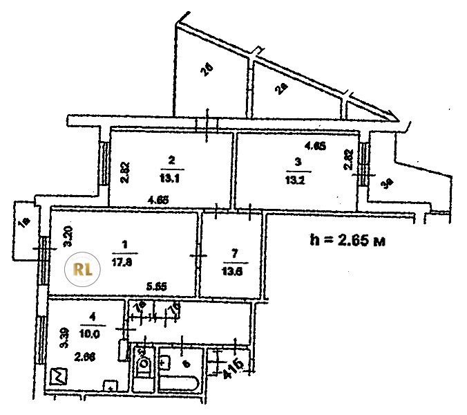
База каталог, Кол-во подъездов: 2, Имеется, П-3/22, Москва, Восточное Дегунино, Площадь парковки: 0, Пассажирский лифт: 2, От метро: 2820, Северный, нет, Наименьшее кол-во этажей: 16, Наибольшее кол-во этажей: 16, Алтуфьево, Кол-во помещений: 128, Кол-во нежилых помещений: 0, Год ввода в эксплуатацию: 1979, 3-комн, Кол-во жилых помещений: 128, Не присвоен, дом 46, корпус 1, нет, да, нет, нет, нет, нет, Имеется, Грузовых лифтов: 2, Год постройки: 1979, Дубнинская улица, 37.560143, 55.892405
Свяжитесь со мной на счет цены
10 дн.
T55S892405L37S560143T

На карте


Условия сделки

Источник


Старт продаж

Возможно заинтересует