Top.Mail.Ru

улица Корнейчука, д. 49

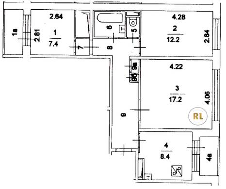
База каталог, Кол-во подъездов: 5, П-30, Москва, Бибирево, Площадь парковки: 0, Пассажирский лифт: 10, От метро: 1920, Северо-Восточный, нет, Наименьшее кол-во этажей: 12, Наибольшее кол-во этажей: 12, Бибирево, Кол-во помещений: 248, Кол-во нежилых помещений: 10, Год ввода в эксплуатацию: 1981, 3-комн, Кол-во жилых помещений: 238, А, дом 49, нет, да, да, да, нет, нет, Грузовых лифтов: 0, Год постройки: 1981, улица Корнейчука, 37.628873, 55.892784
Свяжитесь со мной на счет цены
10 дн.
T55S892784L37S628873T

На карте


Условия сделки

Источник


Старт продаж

Возможно заинтересует