Top.Mail.Ru

Студеный проезд, д. 4, к. 1

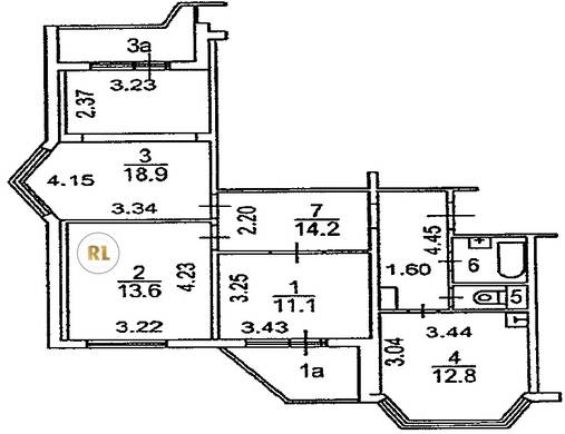
База каталог, Кол-во подъездов: 2, П-44T, Москва, Северное Медведково, Площадь парковки: 0, Пассажирский лифт: 2, От метро: 910, Северо-Восточный, нет, Наименьшее кол-во этажей: 14, Наибольшее кол-во этажей: 14, Медведково, Кол-во помещений: 108, Кол-во нежилых помещений: 4, Год ввода в эксплуатацию: 2005, 3-комн, Кол-во жилых помещений: 104, Не присвоен, дом 4, корпус 1, нет, да, да, да, да, да, Имеется, Грузовых лифтов: 2, Год постройки: 2005, Студеный проезд, 37.655679, 55.893405
Свяжитесь со мной на счет цены
10 дн.
T55S893405L37S655679T

На карте


Условия сделки

Источник


Старт продаж

Возможно заинтересует