Top.Mail.Ru

Студеный проезд, д. 2, к. 1

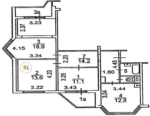
База каталог, Кол-во подъездов: 5, П-44T, Москва, Северное Медведково, Площадь парковки: 0, Пассажирский лифт: 5, От метро: 1020, Северо-Восточный, нет, Наименьшее кол-во этажей: 17, Наибольшее кол-во этажей: 25, Медведково, Кол-во помещений: 360, Кол-во нежилых помещений: 8, Год ввода в эксплуатацию: 2005, 3-комн, Кол-во жилых помещений: 352, Не присвоен, дом 2, корпус 1, нет, да, да, да, да, да, Имеется, Грузовых лифтов: 5, Год постройки: 2005, Студеный проезд, 37.653891, 55.893460
Свяжитесь со мной на счет цены
10 дн.
T55S893460L37S653891T

На карте


Условия сделки

Источник


Старт продаж

Возможно заинтересует