Top.Mail.Ru

Дубнинская ул., д. 50

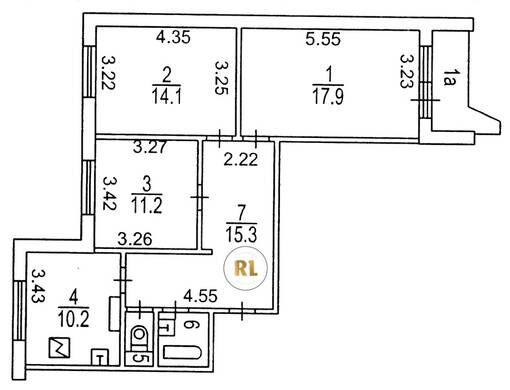
База каталог, Кол-во подъездов: 2, Имеется, П-44, Москва, Восточное Дегунино, Площадь парковки: 0, Пассажирский лифт: 2, От метро: 2640, Северный, нет, Наименьшее кол-во этажей: 17, Наибольшее кол-во этажей: 17, Алтуфьево, Кол-во помещений: 131, Кол-во нежилых помещений: 3, Год ввода в эксплуатацию: 1990, 3-комн, Кол-во жилых помещений: 128, Не присвоен, дом 50, нет, да, нет, нет, нет, нет, Имеется, Грузовых лифтов: 2, Год постройки: 1990, Дубнинская улица, 37.558562, 55.893672
Свяжитесь со мной на счет цены
10 дн.
T55S893672L37S558562T

На карте


Условия сделки

Источник


Старт продаж

Возможно заинтересует