Top.Mail.Ru

улица Корнейчука, д. 41А

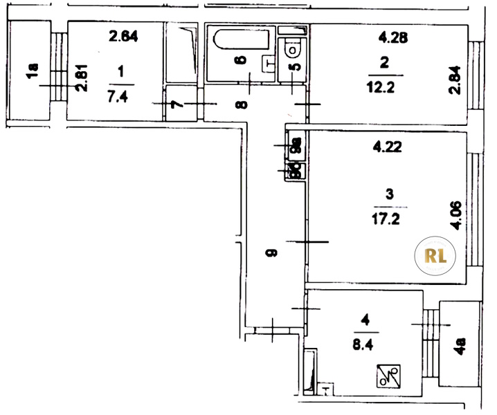
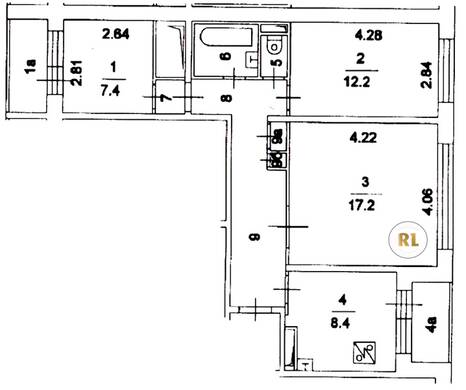
База каталог, Кол-во подъездов: 4, П-30, Москва, Бибирево, Площадь парковки: 0, Пассажирский лифт: 8, От метро: 2230, Северо-Восточный, нет, Наименьшее кол-во этажей: 12, Наибольшее кол-во этажей: 12, Бибирево, Кол-во помещений: 198, Кол-во нежилых помещений: 8, Год ввода в эксплуатацию: 1982, 3-комн, Кол-во жилых помещений: 190, А, дом 41А, нет, да, да, нет, нет, нет, Грузовых лифтов: 0, Год постройки: 1982, улица Корнейчука, 37.632916, 55.893672
Свяжитесь со мной на счет цены
10 дн.
T55S893672L37S632916T

На карте


Условия сделки

Источник


Старт продаж

Возможно заинтересует