Top.Mail.Ru

улица Корнейчука, д. 47

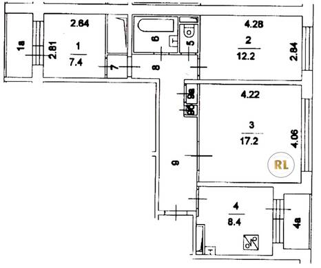
База каталог, Кол-во подъездов: 6, П-30, Москва, Бибирево, Площадь парковки: 0, Пассажирский лифт: 6, От метро: 1950, Северо-Восточный, нет, Наименьшее кол-во этажей: 12, Наибольшее кол-во этажей: 12, Бибирево, Кол-во помещений: 295, Кол-во нежилых помещений: 14, Год ввода в эксплуатацию: 1982, 3-комн, Кол-во жилых помещений: 281, А, дом 47, нет, да, да, да, нет, нет, Грузовых лифтов: 6, Год постройки: 1982, улица Корнейчука, 37.629421, 55.893713
Свяжитесь со мной на счет цены
10 дн.
T55S893713L37S629421T

На карте


Условия сделки

Источник


Старт продаж

Возможно заинтересует