Top.Mail.Ru

Лобненская ул., д. 12, к. 3

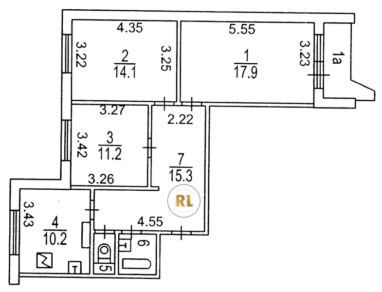
База каталог, Кол-во подъездов: 3, П-44, Москва, Дмитровский, Площадь парковки: 603, Пассажирский лифт: 6, От метро: 3800, Северный, да, Наименьшее кол-во этажей: 16, Наибольшее кол-во этажей: 16, Селигерская, Кол-во помещений: 192, Кол-во нежилых помещений: 1, Год ввода в эксплуатацию: 1982, 3-комн, Кол-во жилых помещений: 191, E, дом 12, корпус 3, нет, нет, нет, нет, нет, нет, Грузовых лифтов: 0, Год постройки: 1982, Лобненская улица, 37.526124, 55.894243
Свяжитесь со мной на счет цены
10 дн.
T55S894243L37S526124T

На карте


Условия сделки

Источник


Старт продаж

Возможно заинтересует